华星时代广场,鼎踏文三路IT蓝图大道的黄金地段,雄距区域扩张最大的钻石地带,把控IT经营发展的命脉,赢得先决者的时代财富。 大厦外立面为进口花岗岩,楼内公共部位全部采用专门为舒适办公环境而设计的绿色环保高档装修材料。大厦总高度为98M,共25层(含地下一层),总面积65000M²,气派沉稳,彰显现代商务办公的尊裔气质。 独特的中空大堂,华丽,尊贵,庄重,充分体现企业的雄厚实力。 大厦十层以上可以俯瞰杭州核心—西湖,可瞭望西湖群山及杭城的大部分景观。 交通便捷,定格事业焦点,周边人文环境成熟,文化氛围浓郁,曾先后吸引阿里巴巴、华为、前程无忧等众多知名企业入驻。
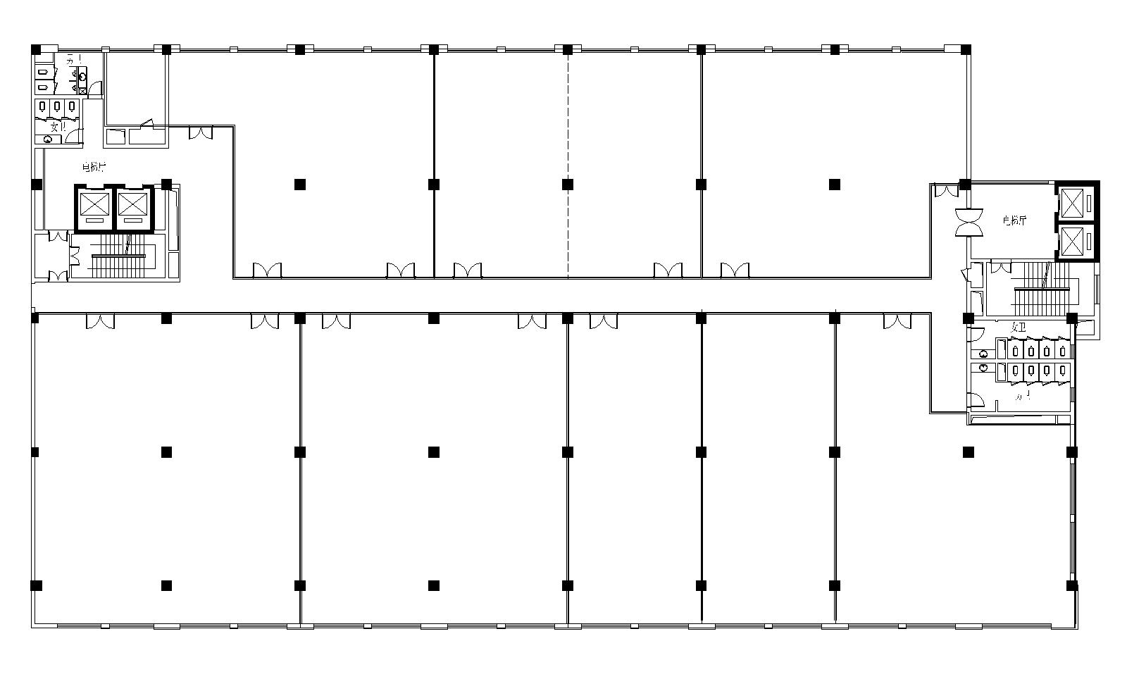
A座主楼七层
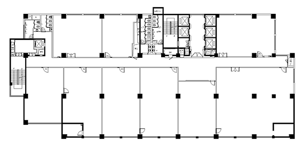
B座三层标准层
C座三层标准层
会议中心
有大、小两个数字化高档的会议室,可容纳20~
80人不等。均设有投影仪及音响设备,适用于商
务洽谈、中型茶话会等各种会议。
预定热线:0571-88867777 0571-88860111
员工餐厅
B座六楼设有大型员工自助餐厅。由物业公司自
主经营。餐厅布局合理,装修风格简洁明快,清
新古朴,符合白领人群的餐饮需求,为各大楼内
租户提供用餐保证。
咨询电话:0571-81110166
商务中心
为了所有租户工作的便捷有效,一楼大堂设有商务中心,为租户提供复印、传真、打 印、制表等有偿服务。
咨询电话:0571-56760009
商务休闲
为给大厦内白领人士提供商务洽谈、放松休闲的最佳地点,特地引进世界知名品牌costa入驻,在一楼大堂开设咖啡吧。装修风格现代简约,咖啡的香甜气息浓郁沁人。
咨询电话:0571-87358623
停车场
大厦共计300余个车位,竭力满足租户停车需求。
咨询电话:0571-88867777、0571-88860111











